Lublin, Śródmieście, Stare Miasto

Mieszkanie na sprzedaż

Opis nieruchomości

DEWELOPER LUBLIN

 Obręb - STARE MIASTO !

Klimatyzacja w standardzie każdego mieszkania ! - jednostka zewnętrzna oraz wewnętrzna.

Możliwość Oglądania mieszkań w środku budynku od poniedziałku do piątku w godzinach 8:30 - 15:30


Inwestycja powstaje nieopodal Zamku Lubelskiego, dojście pieszo do Zamku jak również Bramy krakowskiej nie zajmuje więcej niż 10 minut spacerem !

W Apartamentowcu 3 piętrowym do zaoferowania posiadamy w ofercie aż 75 apartamentów  o zróżnicowanej powierzchni od 33m2 do niemalże 75m2.

Apartamenty charakteryzują się dużymi przeszkleniami z których dostępne są wyjścia na przestronne tarasy, balkony lub loggie.

Dla komfortu mieszkańców w budynku zaprojektowano cichobieżne windy z dostępem do poziomu -1 gdzie będą znajdować się miejsca postojowe.

Genialny projekt architektoniczny budynku idealnie wpasuje się w otoczenie osiedla.

To idealna inwestycja dla ludzi, którzy cenią sobie wysoki standard, komfort, dbałość o szczegóły i nowoczesny design oraz ponadczasowy styl.

Kompaktowa, wyśmienicie zaprojektowana przestrzeń apartamentów zapewni komfort mieszkania nawet najbardziej wymagającym klientom.

Bardzo ważnym elementem będą wygodne i funkcjonalne przestrzenie wspólne zaprojektowane z dbałością o każdy detal, funkcjonalny oraz wizualny.

Najwyższej jakości materiały i spójność aranżacji gwarantuje maksymalną wygodę i komfort użytkowania.


 
 
 
 
 
 
 
 
 
 
 

Wszystkie kondygnacje budynku są w pełni dostępne dla osób niepełnosprawnych.


Wygodne i bezpieczne ogrzewanie miejskie LPEC - BEZ PIECYKÓW


Działamy w oparciu o Nową Ustawę Deweloperską, zapewniamy rachunek powierniczy.

Kupujący zwolniony jest z podatku - PCC 2% oraz prowizji biura nieruchomości.


Kontakt telefoniczny codziennie od 9:00 do 21:00
 

W celu rezerwacji mieszkania zapraszamy :

( ze względu na bardzo duże zainteresowanie inwestycją prosimy o wcześniejsze umawianie się telefonicznie w celu rezerwacji lub spotkania informacyjnego )


Biuro  czynne :
od pon. do sob. 9 - 17
Ul. Zalewskiego 7/U3
20-492 Lublin


Tel : 533997245

wu wu wu kropka clivus kropka pl


Zapraszamy

Nota prawna

Opis oferty zawarty na stronie internetowej sporządzany jest na podstawie oględzin nieruchomości oraz informacji uzyskanych od właściciela, może podlegać aktualizacji i nie stanowi oferty określonej w art. 66 i następnych K.C.

Szczegóły oferty

Symbol oferty CLV-MS-8278
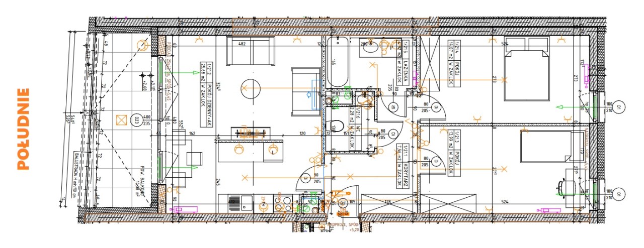
Powierzchnia 67,90 m²
Powierzchnia użytkowa 67,90 m²
Powierzchnia balkonów/tarasów 6,32 m²
Liczba pokoi 3
Piętro 1
Rodzaj budynku blok
Technologia budowlana mieszana
Standard
Opłaty w czynszu administracja, CO, fundusz remontowy, ogrzewanie, sprzątanie, Winda, woda, woda/ryczałt na wodę, wywóz śmieci, zaliczka na fundusz remontowy
Opłaty wg liczników Woda zimna, Woda ciepła, woda, prąd, CO
Liczba pięter w budynku 3
Garaż możliwość kupna
Stan lokalu deweloperski
Stan prawny Własność
Mies. czynsz admin. 129 PLN
Czynsz zimowy 129 PLN
Okna PCV
Instalacje nowe
Balkon loggia
Liczba balkonów 1
Rok budowy 2025
Widok na podwórko
Woda ciepła - miejska
Dojazd asfalt
Otoczenie centrum miasta
Ogrzewanie C.O. miejskie
Winda tak
Liczba wind 1
Usytuowanie jednostronne
Przystosowania dla niepełnosprawnych tak

Lokalizacja

Kalkulator kredytowy

PLN
%
Wysokość raty

Kalkulator kosztów

PLN
PLN
PLN
PLN
PLN
PLN
%
PLN
Podatek od czynności cywilno-prawnych
Taksa notarialna (opłata notarialna)
VAT od taksy notarialnej (opłaty notarialnej)
Wniosek do WKW
VAT od wniosku do WKW
Prowizja agencji nieruchomości
VAT od prowizji agencji nieruchomości
Wypisy aktu notarialnego - około
RAZEM (cena + opłaty)

Podobne oferty

bez prowizji
mieszkanie na sprzedaż - Lublin, Bronowice

mieszkanie na sprzedaż

Lublin, Bronowice
4 pokoje 60,54 m2 8 903,20 zł/m2
oferta specjalna
mieszkanie na sprzedaż - Lublin, Śródmieście, Stare Miasto

mieszkanie na sprzedaż

Lublin, Śródmieście, Stare Miasto
2 pokoje 41,75 m2 19 161,65 zł/m2
bez prowizji
mieszkanie na sprzedaż - Lublin, Czechów Północny

mieszkanie na sprzedaż

Lublin, Czechów Północny
4 pokoje 77,50 m2 9 400,00 zł/m2
bez prowizji
mieszkanie na sprzedaż - Lublin, Czechów Północny

mieszkanie na sprzedaż

Lublin, Czechów Północny
3 pokoje 62,60 m2 9 799,52 zł/m2

Napisz do nas

Proszę wypełnić to pole
Proszę wypełnić to pole
Proszę wypełnić to pole
Proszę wypełnić to pole
Trwa wysyłanie...

Ta strona wykorzystuje pliki cookies w celach statystycznych oraz w celu dostosowania naszych serwisów do indywidualnych potrzeb klientów. Zmiany ustawień dotyczących plików cookie można dokonać w dowolnej chwili modyfikując ustawienia przeglądarki. Korzystanie z tej strony bez zmian ustawień dotyczących cookies oznacza, że będą one zapisane w pamięci urządzenia.

rozumiem