Lublin, Śródmieście

Mieszkanie na sprzedaż

Opis nieruchomości

NOWE 3-pokoje, CENTRUM, idealne do luksusowego zamieszkania. Inwestycja będzie gotowa do końca roku, bardzo wysoki standard wykończenia.

Luksusowe wnętrza, świetny układ, genialny salon to wszystko może być Twoje.

Mieszkanie trzypokojowe w stanie deweloperskim położone jest w centrum Lublina, w okolicy dworca PKP, w dzielnicy która w najbliższych latach będzie najszybciej rozwijającą się w Lublinie. W promieniu 500 metrów mają powstać dwa 14 piętrowe biurowce.

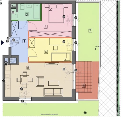
Mieszkanie idealne dla rodziny, składa się z dwóch dużych sypialni, przestronnego salonu wraz z aneksem kuchennym, dużej łazienki i wyjątkowego tarasu o powierzchni ponad 30 m2

Wysoki standard wykończenia budynku.

Mieszkanie posiada bardzo dobry układ jest świetne do mieszkania z rodziną.

Mieszkanie położone na parterze, zapewnia prywatność i spokój.

Bardzo dobre położenie mieszkania:
- 300 metrów do Dworca Metropolitalnego
- 600 metrów Park Bronowice
- 700 metrów Aqua Lublin
- 800 metrów Stadion Żużlowy
- 900 metrów Park Ludowy
- 1400 metrów Politechnika Lubelska

Praktycznie wszystko co najważniejsze w promieniu 1 km od mieszkania. 

Inwestycja o podwyższonym standardzie. Początek sprzedaży, dzięki czemu jest jeszcze duży wybór mieszkań od 30 m2 do 70 m2.

Kompaktowa, wyśmienicie zaprojektowana przestrzeń apartamentów zapewni komfort mieszkania nawet najbardziej wymagającym klientom.

Wszystkie kondygnacje budynku są w pełni dostępne dla osób niepełnosprawnych.

Wygodne i bezpieczne ogrzewanie miejskie LPEC - BEZ PIECYKÓW

Kupujący zwolniony jest z podatku - PCC 2% oraz prowizji biura nieruchomości.

Pomagamy we wszystkim, poprzez wybór odpowiedniego mieszkania, kredyt, polecenie ekipy wykończeniowej, zaprojektowanie wykończenia mieszkania i nadzór nad ekipą wykończeniową.

Kontakt telefoniczny codziennie od 9:00 do 21:00

W celu rezerwacji mieszkania zapraszamy :

( ze względu na bardzo duże zainteresowanie inwestycją prosimy o wcześniejsze umawianie się telefonicznie w celu rezerwacji lub spotkania informacyjnego )

Biuro czynne :
od pon. do sob. 9 - 17
Ul. Zalewskiego 7/U3
20-492 Lublin
 

Nota prawna

Opis oferty zawarty na stronie internetowej sporządzany jest na podstawie oględzin nieruchomości oraz informacji uzyskanych od właściciela, może podlegać aktualizacji i nie stanowi oferty określonej w art. 66 i następnych K.C.

Szczegóły oferty

Symbol oferty CLV-MS-8626
Powierzchnia 59,05 m²
Powierzchnia użytkowa 59,05 m²
Powierzchnia balkonów/tarasów 8,00 m²
Liczba pokoi 2
Piętro wysoki parter
Rodzaj budynku apartamentowiec
Technologia budowlana mieszana
Standard
Opłaty w czynszu administracja, CO, Części wspólne, fundusz remontowy, ogrzewanie, sprzątanie, Winda, woda, woda ciepła, woda/ryczałt na wodę, wywóz nieczystości, wywóz śmieci, zaliczka na fundusz remontowy
Opłaty wg liczników CO, prąd, woda
Liczba pięter w budynku 4
Stan lokalu deweloperski
Stan prawny Odrębna własność lokalu
Mies. czynsz admin. 100 PLN
Czynsz zimowy 100 PLN
Okna PCV 3 szyby, ciepły montaż
Instalacje KLIMATYZACJA, TELEFONICZNA, OGRZEWANIE
Balkon jest
Rok budowy 2026
Parking strzeżony (odległość w metrach) 20 m
Widok na inne budynki
Gaz brak
Woda ciepła - miejska
Dojazd asfaltowa/kostka
Otoczenie centrum miasta
Ogrzewanie C.O. miejskie
Winda tak
Liczba wind 3
Tarasy taras duży
Usytuowanie jednostronne
Drzwi antywłamaniowe tak
Klucze tak

Pomieszczenia

Powierzchnia pokoi 20 m2
Powierzchnia kuchni 20 m2

Lokalizacja

Kalkulator kredytowy

PLN
%
Wysokość raty

Kalkulator kosztów

PLN
PLN
PLN
PLN
PLN
PLN
%
PLN
Podatek od czynności cywilno-prawnych
Taksa notarialna (opłata notarialna)
VAT od taksy notarialnej (opłaty notarialnej)
Wniosek do WKW
VAT od wniosku do WKW
Prowizja agencji nieruchomości
VAT od prowizji agencji nieruchomości
Wypisy aktu notarialnego - około
RAZEM (cena + opłaty)

Podobne oferty

bez prowizji
mieszkanie na sprzedaż - Lublin, Bronowice

mieszkanie na sprzedaż

Lublin, Bronowice
2 pokoje 51,43 m2 9 702,51 zł/m2
bez prowizji
mieszkanie na sprzedaż - Lublin, Śródmieście, okol. Uniwersytetu Medycznego

mieszkanie na sprzedaż

Lublin, Śródmieście, okol. Uniwersytetu Medycznego
2 pokoje 39,61 m2 13 200,00 zł/m2
bez prowizji
mieszkanie na sprzedaż - Lublin, Śródmieście, okol. Uniwersytetu Medycznego

mieszkanie na sprzedaż

Lublin, Śródmieście, okol. Uniwersytetu Medycznego
2 pokoje 45,38 m2 11 650,00 zł/m2
bez prowizji
mieszkanie na sprzedaż - Lublin, Czechów Południowy

mieszkanie na sprzedaż

Lublin, Czechów Południowy
3 pokoje 65,02 m2 10 550,00 zł/m2

Napisz do nas

Proszę wypełnić to pole
Proszę wypełnić to pole
Proszę wypełnić to pole
Proszę wypełnić to pole
Trwa wysyłanie...

Ta strona wykorzystuje pliki cookies w celach statystycznych oraz w celu dostosowania naszych serwisów do indywidualnych potrzeb klientów. Zmiany ustawień dotyczących plików cookie można dokonać w dowolnej chwili modyfikując ustawienia przeglądarki. Korzystanie z tej strony bez zmian ustawień dotyczących cookies oznacza, że będą one zapisane w pamięci urządzenia.

rozumiem