Lokalizacja: Lubartów, woj. lubelskie (ok. 20 min od Lublina) / po wybudowaniu nowej trasy jedynie 10 minut od Lublina.
Rok budowy: 2020
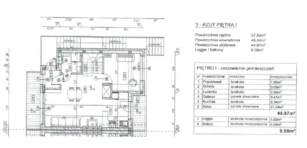
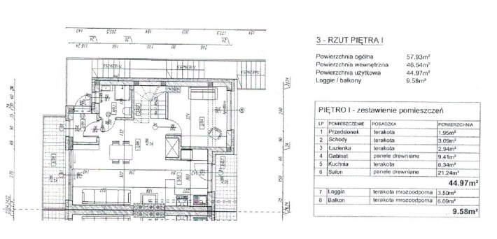
Powierzchnia: ok. 100 m²
Piętro: Piętro 1. i 2. poziom w kameralnym budynku 2-piętrowym
Status: Bezczynszowe
Stan: W pełni wyposażone, gotowe do zamieszkania – "do wejścia od zaraz"
Na sprzedaż oferujemy komfortowe, przestronne dwupoziomowe mieszkanie o powierzchni około 100 m², zlokalizowane w nowoczesnym budynku z 2020 roku, w spokojnej części Lubartowa, z bardzo dobrym dojazdem do Lublina.
Mieszkanie znajduje się na 1. piętrze i poddaszu użytkowym w kameralnym, 2-piętrowym budynku. Nieruchomość nie wymaga żadnych nakładów finansowych – jest w pełni umeblowana i wyposażona, gotowa do zamieszkania od zaraz.
Poziom 1:
Przestronny salon z aneksem kuchennym
Sypialnia/pokój gościnny/biuro
Łazienka z WC i prysznicem
spiżarka
Przedpokój
Poziom 2 (poddasze użytkowe):
Dwie ustawne sypialnie
Garderoba lub schowek - wyjście na przestronny strych,
Druga łazienka z wanną
Bezczynszowe – brak comiesięcznych opłat administracyjnych
Nowoczesne wykończenie, wysokiej jakości materiały
Miejsce parkingowe przed budynkiem
Własne ogrzewanie
Blisko sklepy, szkoły, przedszkola i komunikacja
Cena i kontakt:
Szczegóły dotyczące ceny oraz możliwość umówienia się na prezentację – proszę o kontakt telefoniczny lub wiadomość prywatną.



