Lublin, Śródmieście

Mieszkanie na sprzedaż

Opis nieruchomości

UWAGA!!! Promocyjna CENA tylko 5 pierwszych mieszkań !!!

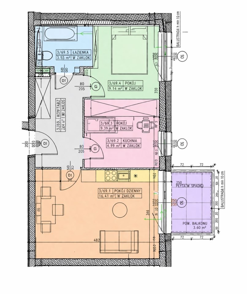
Mieszkanie dwupokojowe w stanie deweloperskim położone jest w ścisłym centrum Lublina.

Wysoki standard wykończenia budynku. W mieszkaniu zamontowana jest klimatyzacja, co jest unikatowe na rynku Lubelskim.

Mieszkanie posiada bardzo dobry układ jest świetne jako jako pierwsze mieszkanie. Mieszkanie idealne dla pary lub rodziny.

Mieszkanie wyróżnia się tym, że posiada dwa oddzielne pokoje, czyli sypialnię i salon, a także oddzielną kuchnię. Lokalizacja w ścisłym centrum wszystko na miejscu, przedszkole, szkoła, sklepy.

Mieszkanie idealne na start dla rodziny.



Bardzo dobre położenie mieszkania:
- 800 metrów do Bramy Krakowskiej
- 400 metrów centrum handlowe Gala
- 900 metrów Park Ludowy
- 700 metrów Park Bronowice
- 600 metrów Aqua Lublin
- 900 metrów Podzamcze i Zamek Lubelski

Praktycznie wszystko co najważniejsze w promieniu 1 km od mieszkania. Wszędzie można chodzić pieszo, bardzo dużo restauracji i punktów usługowych w pobliżu. Jednocześnie inwestycja jest kameralna, to jeden Apartamentowiec o wysokim standardzie wykończenia.

W inwestycji posiadamy jeszcze  kilkanaście ostatnich mieszkań o metrażu od 33m do 74m.
To idealna inwestycja dla ludzi, którzy cenią sobie wysoki standard, komfort, dbałość o szczegóły i nowoczesny design oraz ponadczasowy styl.

Kompaktowa, wyśmienicie zaprojektowana przestrzeń apartamentów zapewni komfort mieszkania nawet najbardziej wymagającym klientom.

Wszystkie kondygnacje budynku są w pełni dostępne dla osób niepełnosprawnych.

Wygodne i bezpieczne ogrzewanie miejskie LPEC - BEZ PIECYKÓW

Kupujący zwolniony jest z podatku - PCC 2% oraz prowizji biura nieruchomości.

Pomagamy we wszystkim, poprzez wybór odpowiedniego mieszkania, kredyt, polecenie ekipy wykończeniowej, zaprojektowanie wykończenia mieszkania i nadzór nad ekipą wykończeniową.

Kontakt telefoniczny codziennie od 9:00 do 21:00

W celu rezerwacji mieszkania zapraszamy :

( ze względu na bardzo duże zainteresowanie inwestycją prosimy o wcześniejsze umawianie się telefonicznie w celu rezerwacji lub spotkania informacyjnego )

Biuro czynne :
od pon. do sob. 9 - 17
Ul. Zalewskiego 7/U3
20-492 Lublin
 

Nota prawna

Opis oferty zawarty na stronie internetowej sporządzany jest na podstawie oględzin nieruchomości oraz informacji uzyskanych od właściciela, może podlegać aktualizacji i nie stanowi oferty określonej w art. 66 i następnych K.C.

Szczegóły oferty

Symbol oferty CLV-MS-8616
Powierzchnia 40,69 m²
Powierzchnia użytkowa 40,69 m²
Powierzchnia balkonów/tarasów 10,00 m²
Liczba pokoi 2
Piętro 3
Rodzaj budynku apartamentowiec
Technologia budowlana mieszana
Standard
Opłaty w czynszu zaliczka na fundusz remontowy, wywóz śmieci, wywóz nieczystości, woda/ryczałt na wodę, woda ciepła, woda, Winda, sprzątanie, ogrzewanie, fundusz remontowy, Części wspólne, CO, administracja
Opłaty wg liczników woda, prąd, CO
Liczba pięter w budynku 4
Stan lokalu deweloperski
Stan prawny Odrębna własność lokalu
Mies. czynsz admin. 100 PLN
Czynsz zimowy 100 PLN
Okna PCV 3 szyby, ciepły montaż
Instalacje KLIMATYZACJA, TELEFONICZNA, OGRZEWANIE
Balkon jest
Rok budowy 2025
Parking strzeżony (odległość w metrach) 20 m
Widok panorama miasta
Gaz brak
Woda ciepła - miejska
Dojazd asfaltowa/kostka
Otoczenie centrum miasta
Ogrzewanie miejskie
Winda tak
Liczba wind 3
Tarasy taras duży
Usytuowanie jednostronne
Drzwi antywłamaniowe tak
Klucze tak

Pomieszczenia

Powierzchnia pokoi 32 m2
Powierzchnia kuchni 32 m2

Lokalizacja

Kalkulator kredytowy

PLN
%
Wysokość raty

Kalkulator kosztów

PLN
PLN
PLN
PLN
PLN
PLN
%
PLN
Podatek od czynności cywilno-prawnych
Taksa notarialna (opłata notarialna)
VAT od taksy notarialnej (opłaty notarialnej)
Wniosek do WKW
VAT od wniosku do WKW
Prowizja agencji nieruchomości
VAT od prowizji agencji nieruchomości
Wypisy aktu notarialnego - około
RAZEM (cena + opłaty)

Podobne oferty

bez prowizji
mieszkanie na sprzedaż - Lublin, Bronowice

mieszkanie na sprzedaż

Lublin, Bronowice
2 pokoje 51,43 m2 9 702,51 zł/m2
bez prowizji
mieszkanie na sprzedaż - Lublin, Felin

mieszkanie na sprzedaż

Lublin, Felin
2 pokoje 43,19 m2 9 900,00 zł/m2
bez prowizji
mieszkanie na sprzedaż - Lublin, Śródmieście, okol. Uniwersytetu Medycznego

mieszkanie na sprzedaż

Lublin, Śródmieście, okol. Uniwersytetu Medycznego
2 pokoje 39,61 m2 13 200,00 zł/m2
bez prowizji
mieszkanie na sprzedaż - Lublin, Śródmieście, okol. Uniwersytetu Medycznego

mieszkanie na sprzedaż

Lublin, Śródmieście, okol. Uniwersytetu Medycznego
2 pokoje 45,38 m2 11 650,00 zł/m2

Napisz do nas

Proszę wypełnić to pole
Proszę wypełnić to pole
Proszę wypełnić to pole
Proszę wypełnić to pole
Trwa wysyłanie...

Ta strona wykorzystuje pliki cookies w celach statystycznych oraz w celu dostosowania naszych serwisów do indywidualnych potrzeb klientów. Zmiany ustawień dotyczących plików cookie można dokonać w dowolnej chwili modyfikując ustawienia przeglądarki. Korzystanie z tej strony bez zmian ustawień dotyczących cookies oznacza, że będą one zapisane w pamięci urządzenia.

rozumiem