Lublin, Śródmieście

Mieszkanie na sprzedaż

Opis nieruchomości

DEWELOPER LUBLIN 
BEZ PROWIZJI !
BEZ PODATKU PCC !
IDEALNA LOKALIZACJA !
APARTAMENTY ODDANE DO UŻYTKOWANIA !
KLUCZE NA JUŻ ! 


Prezentacje mieszkań na budowie odbywają się codziennie w godzinach 8:00 - 20:00

Pozostały 3 apartamenty jedno lub dwu pokojowe od 30m2 do 41m2


To idealna inwestycja dla ludzi, którzy cenią sobie wysoki standard, komfort, dbałość o szczegóły i nowoczesny design oraz ponadczasowy styl.

Kompaktowa, wyśmienicie zaprojektowana przestrzeń apartamentów zapewni komfort mieszkania nawet najbardziej wymagającym klientom.

Bardzo ważnym elementem będą wygodne i funkcjonalne przestrzenie wspólne zaprojektowane z dbałością o każdy detal, funkcjonalny oraz wizualny.


Cechą charakterystyczną budynku są składane okiennice w kolorze elewacji, zawieszona  nad parterem donica z różnorodnymi nasadzeniami oraz ponadstandardowa wysokość mieszkań od 280 cm do 325 cm.

Udogodnienia dla mieszkańców:
- cichobieżna winda

- monitoring
- instalacja klimatyzacji
- części wspólne wykończone z najwyższą starannością
- miejsce do przechowywania rowerów, skuterów lub hulajnóg
- taras na dachu z widokiem na panoramę starego miasta
- Stokrotka na parterze otwarta codziennie !


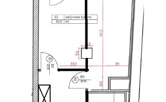
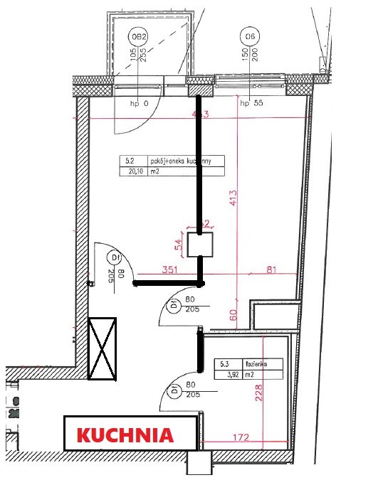
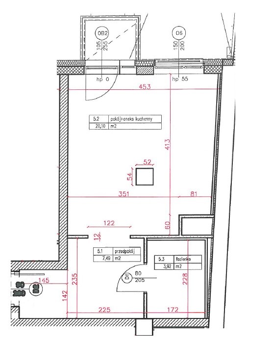
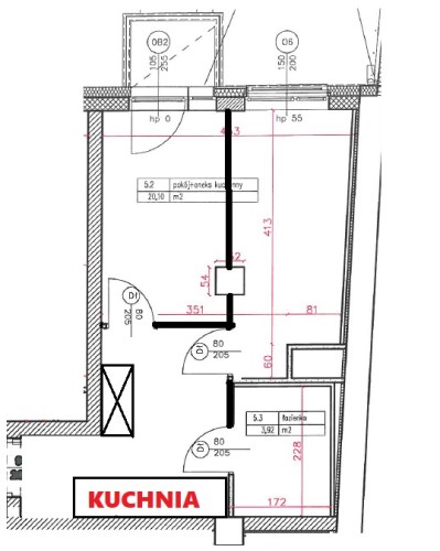
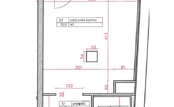
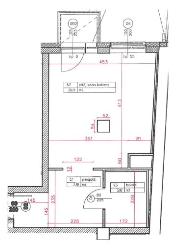
Przedmiotem ogłoszenia jest 1 pokojowe mieszkanie numer M.05 położone na 1 piętrze w inwestycji ZAMOJSKA'29 w Lublinie (dzielnica śródmieście). To wyjątkowy lokal o powierzchni 31,51 m2, który składa się z pokoju dziennego z aneksem kuchennym, łazienki z wc, przestronnego przedpokoju oraz balkonu.


Atutem mieszkania jest ponadstandardowa wysokość 325 cm oraz duże okna i balkon.

Zapraszam na prezentację !


Nota prawna

Opis oferty zawarty na stronie internetowej sporządzany jest na podstawie oględzin nieruchomości oraz informacji uzyskanych od właściciela, może podlegać aktualizacji i nie stanowi oferty określonej w art. 66 i następnych K.C.

Szczegóły oferty

Symbol oferty CLV-MS-8190
Powierzchnia 31,51 m²
Powierzchnia użytkowa 31,51 m²
Powierzchnia balkonów/tarasów 3,00 m²
Liczba pokoi 1
Piętro 1
Rodzaj budynku apartamentowiec
Technologia budowlana cegła ceramiczna
Standard
Opłaty w czynszu Części wspólne, CO, administracja, zaliczka na fundusz remontowy, wywóz śmieci, wywóz nieczystości, woda ciepła, woda, Winda, sprzątanie, ogrzewanie, monitoring, fundusz remontowy
Opłaty wg liczników Woda zimna, Woda ciepła, prąd, CO
Liczba pięter w budynku 4
Stan lokalu deweloperski
Stan prawny Własność
Mies. czynsz admin. 69 PLN
Czynsz zimowy 69 PLN
Okna aluminiowe
Instalacje nowe
Balkon jest
Liczba balkonów 1
Rok budowy 2025
Gaz brak
Woda tak
Dojazd ASFALTOWA
Otoczenie centrum miasta
Ogrzewanie centralne
Winda tak
Liczba wind 1
Usytuowanie jednostronne
Drzwi antywłamaniowe tak
Przystosowania dla niepełnosprawnych tak

Pomieszczenia

Powierzchnia pokoi 19,58 m2
Typ kuchni aneks kuchenny połączony z jadalnią i salonem
Rodzaj kuchni aneks kuchenny - połączony z jadalnią
Powierzchnia kuchni 19,58 m2
Typ łazienki razem z wc
Liczba łazienek 1
Powierzchnia łazienki 3,89 m2
Podłoga łazienki wylewka betonowa

Lokalizacja

Kalkulator kredytowy

PLN
%
Wysokość raty

Kalkulator kosztów

PLN
PLN
PLN
PLN
PLN
PLN
%
PLN
Podatek od czynności cywilno-prawnych
Taksa notarialna (opłata notarialna)
VAT od taksy notarialnej (opłaty notarialnej)
Wniosek do WKW
VAT od wniosku do WKW
Prowizja agencji nieruchomości
VAT od prowizji agencji nieruchomości
Wypisy aktu notarialnego - około
RAZEM (cena + opłaty)

Podobne oferty

bez prowizji
mieszkanie na sprzedaż - Lublin, Ponikwoda

mieszkanie na sprzedaż

Lublin, Ponikwoda
2 pokoje 36,17 m2 10 500,00 zł/m2
bez prowizji
mieszkanie na sprzedaż - Lublin, Węglin, Węglinek

mieszkanie na sprzedaż

Lublin, Węglin, Węglinek
2 pokoje 34,06 m2 11 590,00 zł/m2
oferta specjalna
mieszkanie na sprzedaż - Lublin, Węglin, Węglinek

mieszkanie na sprzedaż

Lublin, Węglin, Węglinek
2 pokoje 34,06 m2 11 800,00 zł/m2
bez prowizji
mieszkanie na sprzedaż - Lublin, Śródmieście, Stare Miasto

mieszkanie na sprzedaż

Lublin, Śródmieście, Stare Miasto
2 pokoje 35,13 m2 13 000,00 zł/m2

Napisz do nas

Proszę wypełnić to pole
Proszę wypełnić to pole
Proszę wypełnić to pole
Proszę wypełnić to pole
Trwa wysyłanie...

Ta strona wykorzystuje pliki cookies w celach statystycznych oraz w celu dostosowania naszych serwisów do indywidualnych potrzeb klientów. Zmiany ustawień dotyczących plików cookie można dokonać w dowolnej chwili modyfikując ustawienia przeglądarki. Korzystanie z tej strony bez zmian ustawień dotyczących cookies oznacza, że będą one zapisane w pamięci urządzenia.

rozumiem