Lublin, Czechów Północny

Mieszkanie na sprzedaż

Opis nieruchomości


DEWELOPER LUBLIN !

BEZ PROWIZJI ORAZ BEZ PODATKU PCC !

OKAZJA !

MOŻLIWOŚĆ WEJŚCIA NA BUDOWĘ CODZIENNIE OD GODZINY 8:00 do 16:00 !

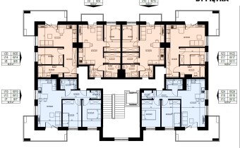
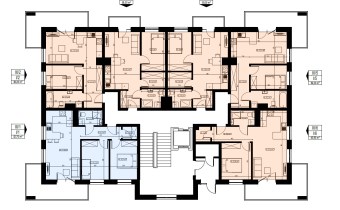
( Salon z  aneksem kuchennym + sypialnia ), usytuowane na trzecim piętrze.

Idealny rozkład pomieszczeń !

Mieszkanie jedno stronne  - zachód z pięknym widokiem na panoramę osiedla. 

Osiedle znajdować się będzie w dzielnicy Czechów Północny ul. Koncertowa.

Dostępne są również większe metraże.

Atutem tej lokalizacji jest bliskość zielonych terenów chronionych sąsiadujących bezpośrednio z naszymi budynkami.

Inwestycja znajdować się będzie zaledwie 5 minut samochodem od węzła Czechów obwodnicy Lublina, co zdecydowanie ułatwi przemieszczanie się do innych dzielnic Lublina, jak i wyjazd z miasta.

Inwestycja obecnie jest w trakcie budowy z planowanym na IV  kw. 2025 roku terminem oddania do użytkowania.

Dostępne są mieszkania:

kawalerki - 26,5m2 - z możliwością wydzielenia sypialni ! - kilka wolnych mieszkań
2 pokoje - 39m2 -do 45m2 - kilka wolnych mieszkań
3 pokoje - 52m2 do 63 m2 - kilka wolnych mieszkań
4-pokojowe o powierzchni 77 m2

Dla przyszłych mieszkańców przewidziane zostały :

  • - komórki lokatorskie 
    - miejsca parkingowe zewnętrzne
    - miejsca parkingowe podziemne

    Pełną ofertę mieszkań przesyłam na wskazany przez Państwa adres e-mail w zgłoszeniu.
    Lub telefonicznie można podesłać swój e-mail w celu udostępnienia materiałów :
    prospekt informacyjny z harmonogramem płatności
    wzór umowy deweloperskiej
    plan zagospodarowania terenu
    rzuty kondygnacji i wizualizacje.

    Działamy w oparciu o ustawę Deweloperską, zapewniamy rachunek powierniczy.

    Kupujący zwolniony jest z podatku - PCC 2% oraz prowizji biura nieruchomości.

    Wszystkie kondygnacje budynku są w pełni dostępne dla osób niepełnosprawnych.

    Kontakt telefoniczny codziennie od 9:00 do 21:00

    Prezentacje mieszkań na budowie od poniedziałku do soboty w godzinach 8:30- 19:00 -

    W celu rezerwacji mieszkania zapraszamy - możliwość rezerwacji na 5 dni bezpłatnie w celu zapoznania się z dokumentami.

    Biuro czynne :
    od pon. do sob. 9 - 17
    Ul. Zalewskiego 7/U3
    20-492 Lublin

    Tel : 533997245

    W naszej ofercie posiadamy również ogromną ilość mieszkań oraz domów dostępnych na terenie Lublina i okolic.
    Deweloperskich oraz wykończonych do wprowadzenia.
    Do dyspozycji dla naszych klientów jest również doradca kredytowy oraz doświadczone ekipy remontowo / wykończeniowe.
    Wykańczając mieszkanie z naszą firmą klienci mogą liczyć na wysokie rabaty na materiały potrzebne do wykończenia mieszkania nawet do 50%.
    (prezentacje wykończonych mieszkań przez nasze ekipy dostępne na terenie Lublina i okolic )

    Zapraszamy

Nota prawna

Opis oferty zawarty na stronie internetowej sporządzany jest na podstawie oględzin nieruchomości oraz informacji uzyskanych od właściciela, może podlegać aktualizacji i nie stanowi oferty określonej w art. 66 i następnych K.C.

Szczegóły oferty

Symbol oferty CLV-MS-8300
Powierzchnia 39,20 m²
Powierzchnia użytkowa 39,20 m²
Powierzchnia balkonów/tarasów 4,00 m²
Liczba pokoi 2
Piętro 2
Rodzaj budynku blok
Technologia budowlana mieszana
Standard
Liczba pięter w budynku 3
Garaż garaż pod budynkiem
Stan lokalu deweloperski
Stan prawny Własność
Mies. czynsz admin. 89 PLN
Czynsz zimowy 89 PLN
Okna PCV
Instalacje nowe
Balkon jest
Liczba balkonów 1
Liczba tarasów 1
Rok budowy 2025
Parking strzeżony (odległość w metrach) 100 m
Widok panorama miasta
Gaz brak
Woda jest
Dojazd asfalt
Winda tak
Liczba wind 1
Tarasy taras
Usytuowanie narożne
Drzwi antywłamaniowe tak
Przystosowania dla niepełnosprawnych tak

Lokalizacja

Kalkulator kredytowy

PLN
%
Wysokość raty

Kalkulator kosztów

PLN
PLN
PLN
PLN
PLN
PLN
%
PLN
Podatek od czynności cywilno-prawnych
Taksa notarialna (opłata notarialna)
VAT od taksy notarialnej (opłaty notarialnej)
Wniosek do WKW
VAT od wniosku do WKW
Prowizja agencji nieruchomości
VAT od prowizji agencji nieruchomości
Wypisy aktu notarialnego - około
RAZEM (cena + opłaty)

Podobne oferty

bez prowizji
mieszkanie na sprzedaż - Lublin, Ponikwoda

mieszkanie na sprzedaż

Lublin, Ponikwoda
2 pokoje 36,17 m2 10 500,00 zł/m2
bez prowizji
mieszkanie na sprzedaż - Lublin, Bronowice

mieszkanie na sprzedaż

Lublin, Bronowice
4 pokoje 60,54 m2 8 903,20 zł/m2
bez prowizji
mieszkanie na sprzedaż - Lublin, Węglin, Węglinek

mieszkanie na sprzedaż

Lublin, Węglin, Węglinek
2 pokoje 34,06 m2 11 900,00 zł/m2
bez prowizji
mieszkanie na sprzedaż - Lublin, Bronowice

mieszkanie na sprzedaż

Lublin, Bronowice
2 pokoje 51,43 m2 9 702,51 zł/m2

Napisz do nas

Proszę wypełnić to pole
Proszę wypełnić to pole
Proszę wypełnić to pole
Proszę wypełnić to pole
Trwa wysyłanie...

Ta strona wykorzystuje pliki cookies w celach statystycznych oraz w celu dostosowania naszych serwisów do indywidualnych potrzeb klientów. Zmiany ustawień dotyczących plików cookie można dokonać w dowolnej chwili modyfikując ustawienia przeglądarki. Korzystanie z tej strony bez zmian ustawień dotyczących cookies oznacza, że będą one zapisane w pamięci urządzenia.

rozumiem